Vue du salon existant
Vue du salon existant
Projet option 2
Projet option 2
Vue de la cuisine Projet
Vue de la cuisine Projet
Vue de l'entrée Projet
Vue de l'entrée Projet
Coupe T Projet
Coupe T Projet
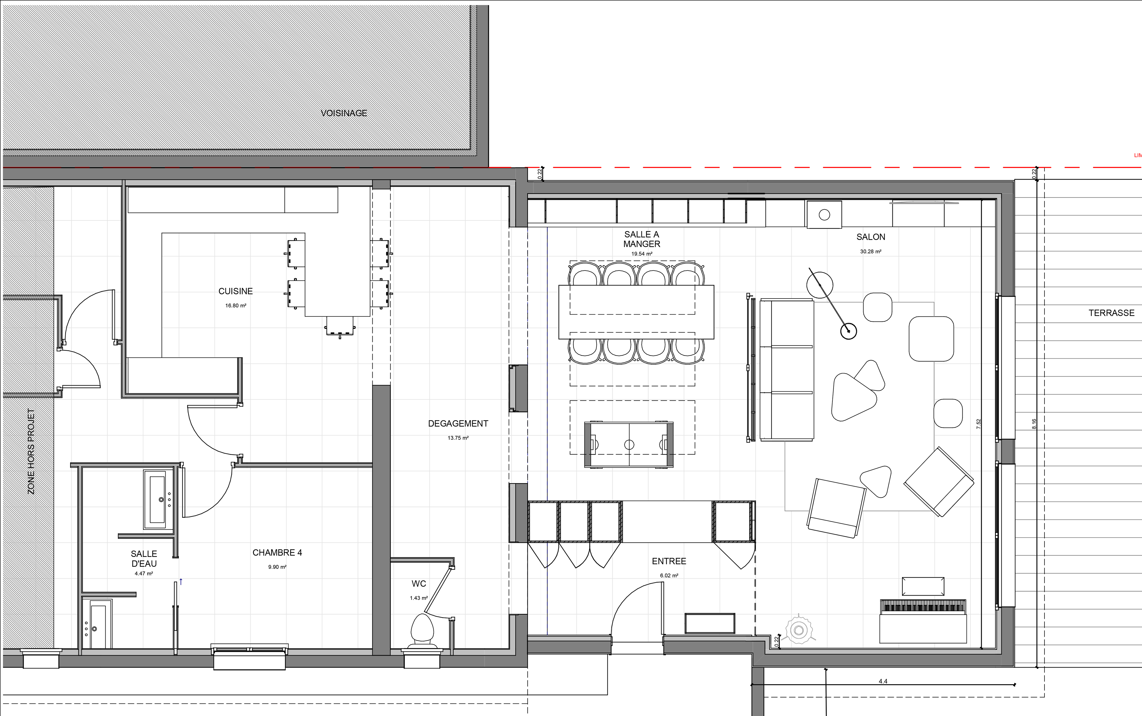
Plan RDC Projet
Plan RDC Projet