References
Experience Professionelle
References
Experience Professionelle
Louis Mousset
3D
Coupe & Façades
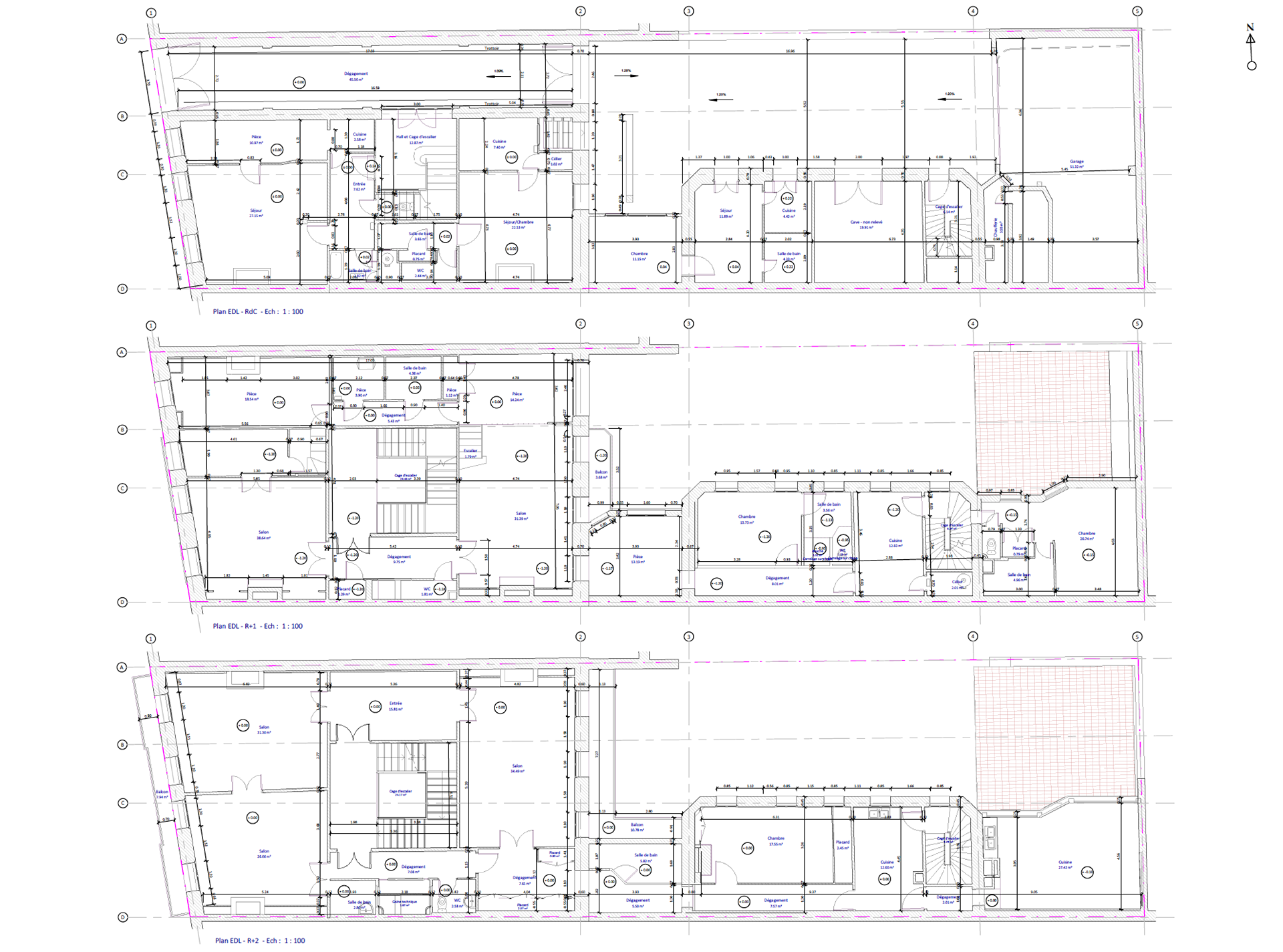
Existant
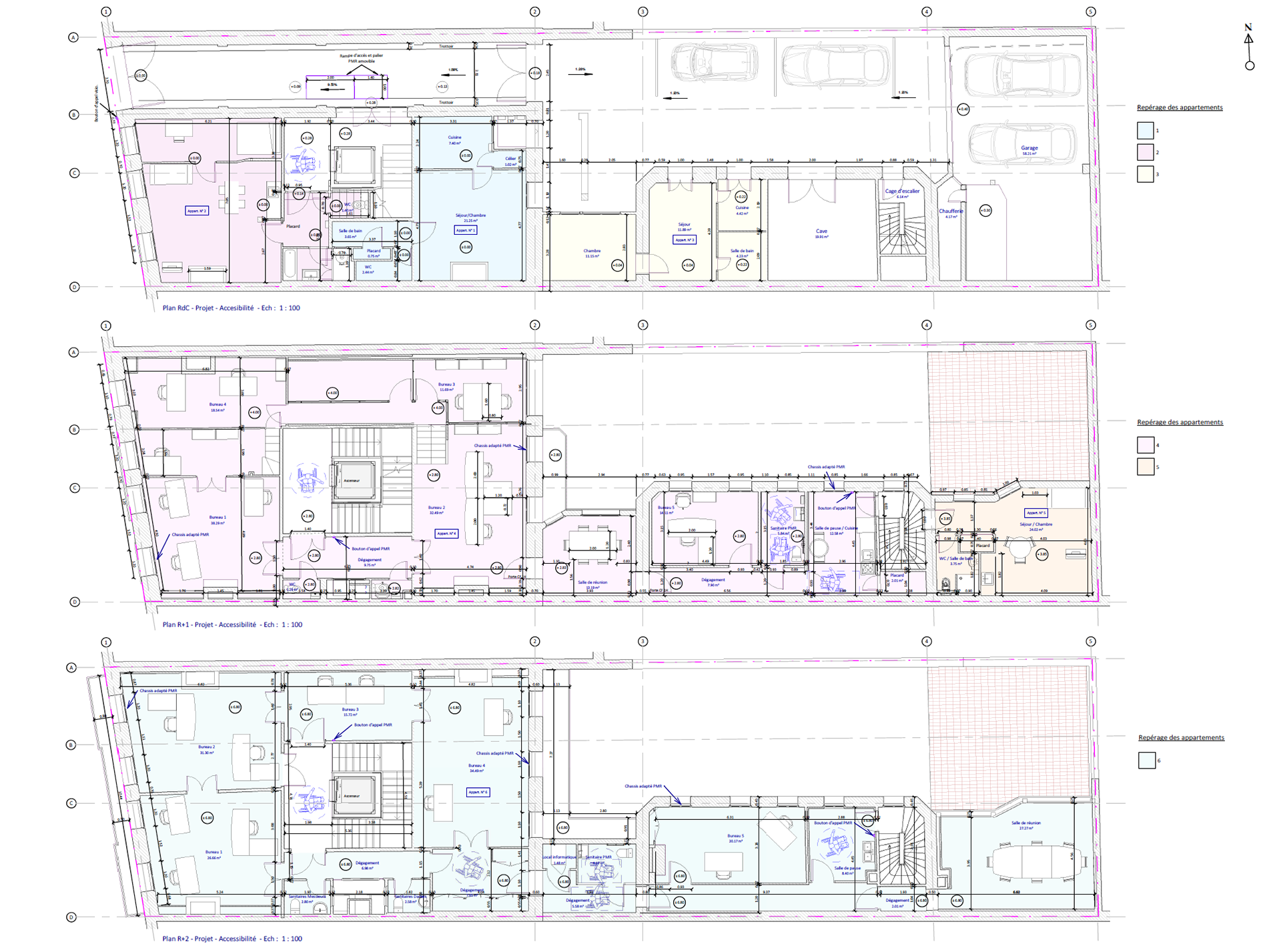
Projet