Mon dernier projet, pour le client Region Nouvelle-Aquitaine, comprenait l’extension d’une école d’ingénieur, ceci consis-tait en un réaménagement de l’existant ,1500 m², et une extension d’environ 2000 m². J’ai pu apporter mes connais-sances combinées, techniques et logiciels, pour la réalisation d’une maquette de la phase Esquisse jusqu’au Dossier de Consultation des entrepris en LOD 300.
Image concours - équipe DM-Architectes
Image concours - équipe DM-Architectes
Image concours - équipe DM-Architectes
Image concours - équipe DM-Architectes
Bâtiment Existant
Bâtiment Existant
Bâtiment Démolition+Projet
Bâtiment Démolition+Projet
Perspective  maquette Projet
Perspective maquette Projet
Plan de masse
Plan de masse
RDC
RDC
Plan de toiture
Plan de toiture
Façades
Façades
Zoom façades zone 1
Zoom façades zone 1
Locaux annexes
Locaux annexes
Zoom sur zone 1 RDC
Zoom sur zone 1 RDC
Coupe L sur zone 1
Coupe L sur zone 1
Coupe T sur zone 1
Coupe T sur zone 1
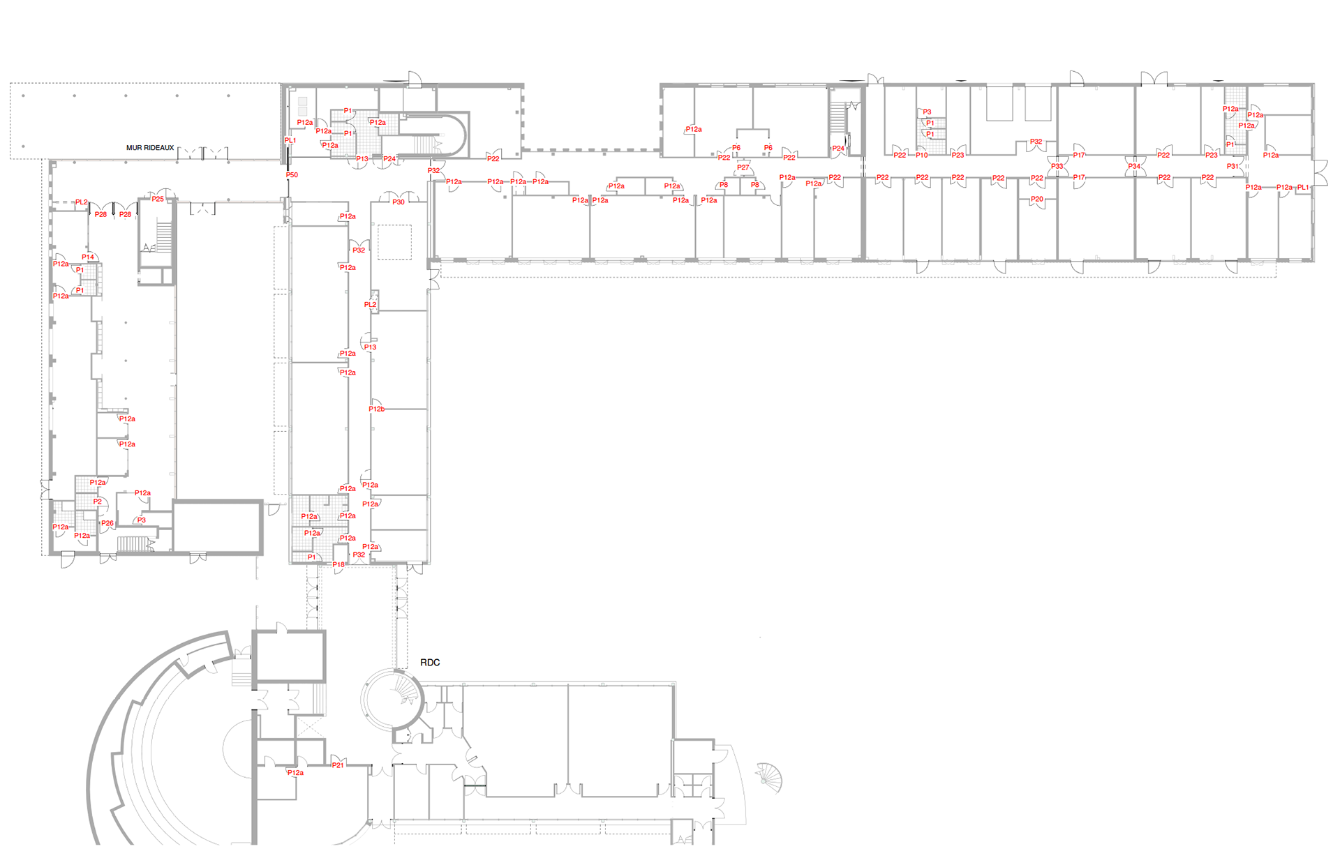
Repérage des cloisons
Repérage des cloisons
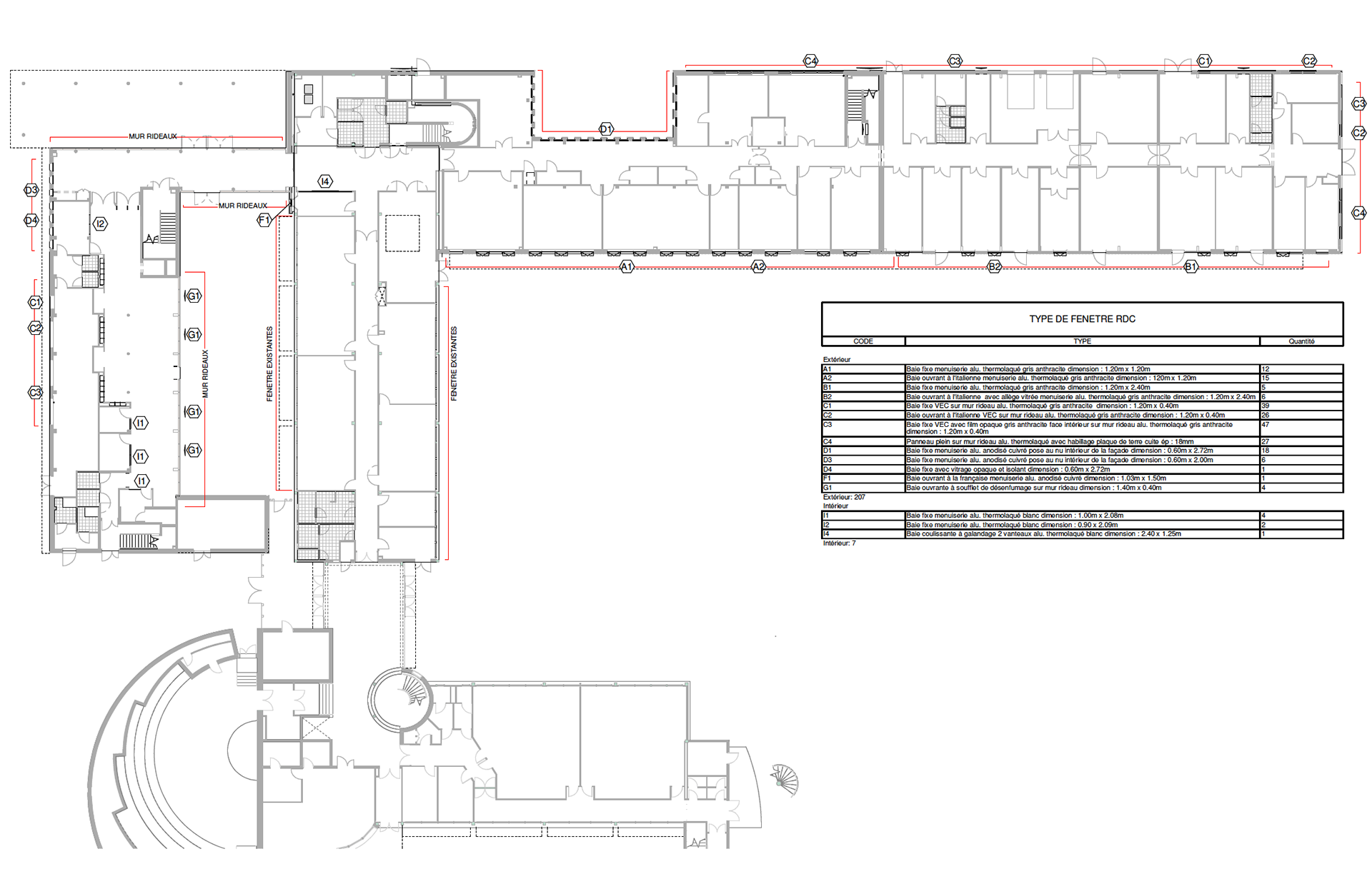
Repérage des fenêtres RDC
Repérage des fenêtres RDC
Repérage des portes int. RDC
Repérage des portes int. RDC
Extrait nomenclature des portes int. RDC
Extrait nomenclature des portes int. RDC
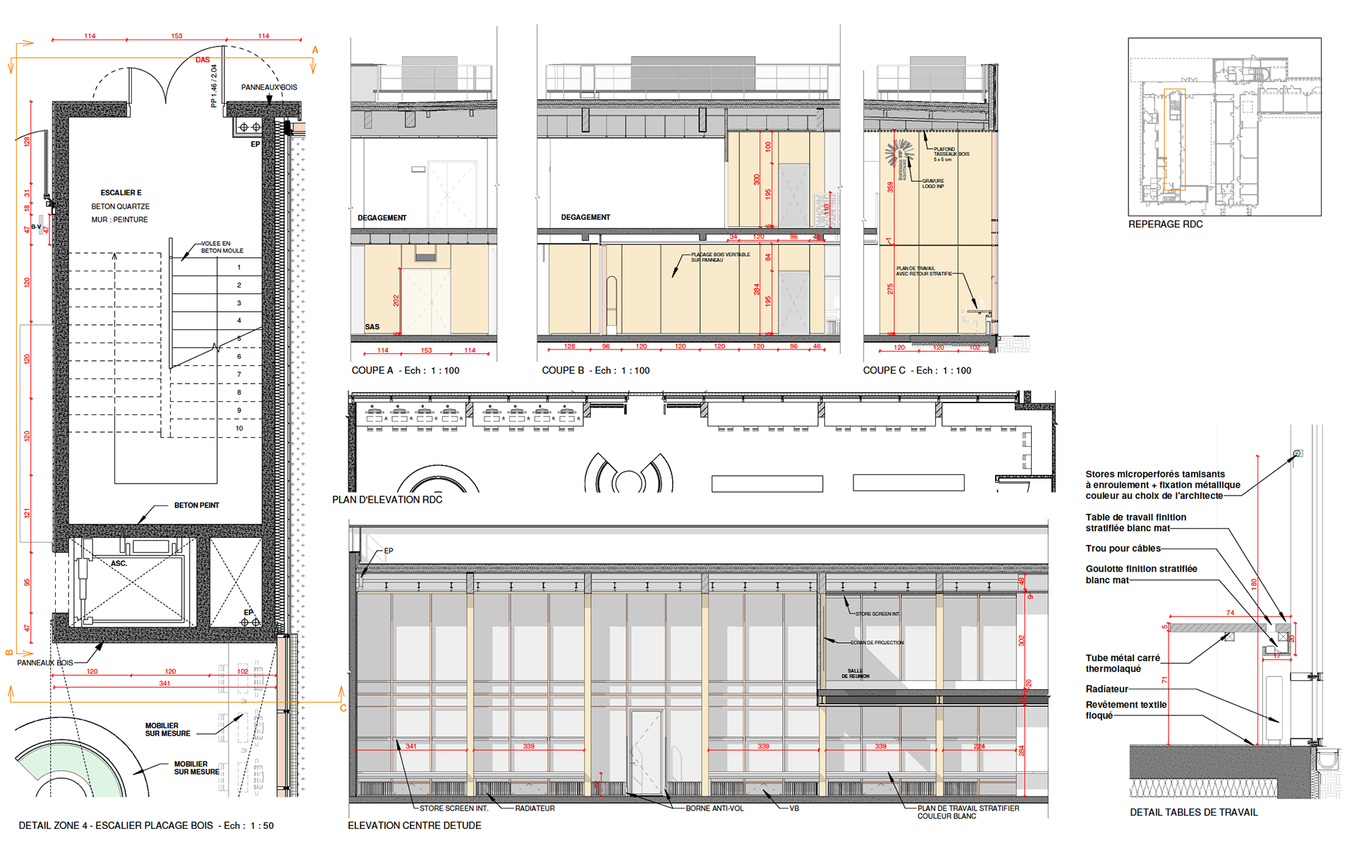
Revêtement escalier Biblio.
Revêtement escalier Biblio.
Mobilier Biblio.
Mobilier Biblio.
Schéma de décente EP
Schéma de décente EP
Détail Banque d'accueil
Détail Banque d'accueil
Détail 01
Détail 01
Détail 02
Détail 02
Détail escalier Biblio.
Détail escalier Biblio.
Coupe L sur zone 3
Coupe L sur zone 3
Coupe T sur Zone 3
Coupe T sur Zone 3
Détail des ouvertures
Détail des ouvertures
Détail panneau de signalisation
Détail panneau de signalisation